作品名称:禅一民宿酒店
作 者:赵玉文
项目地址:丽江
作品类型:室内空间设计
作品归属:设计系教师作品
设计说明:
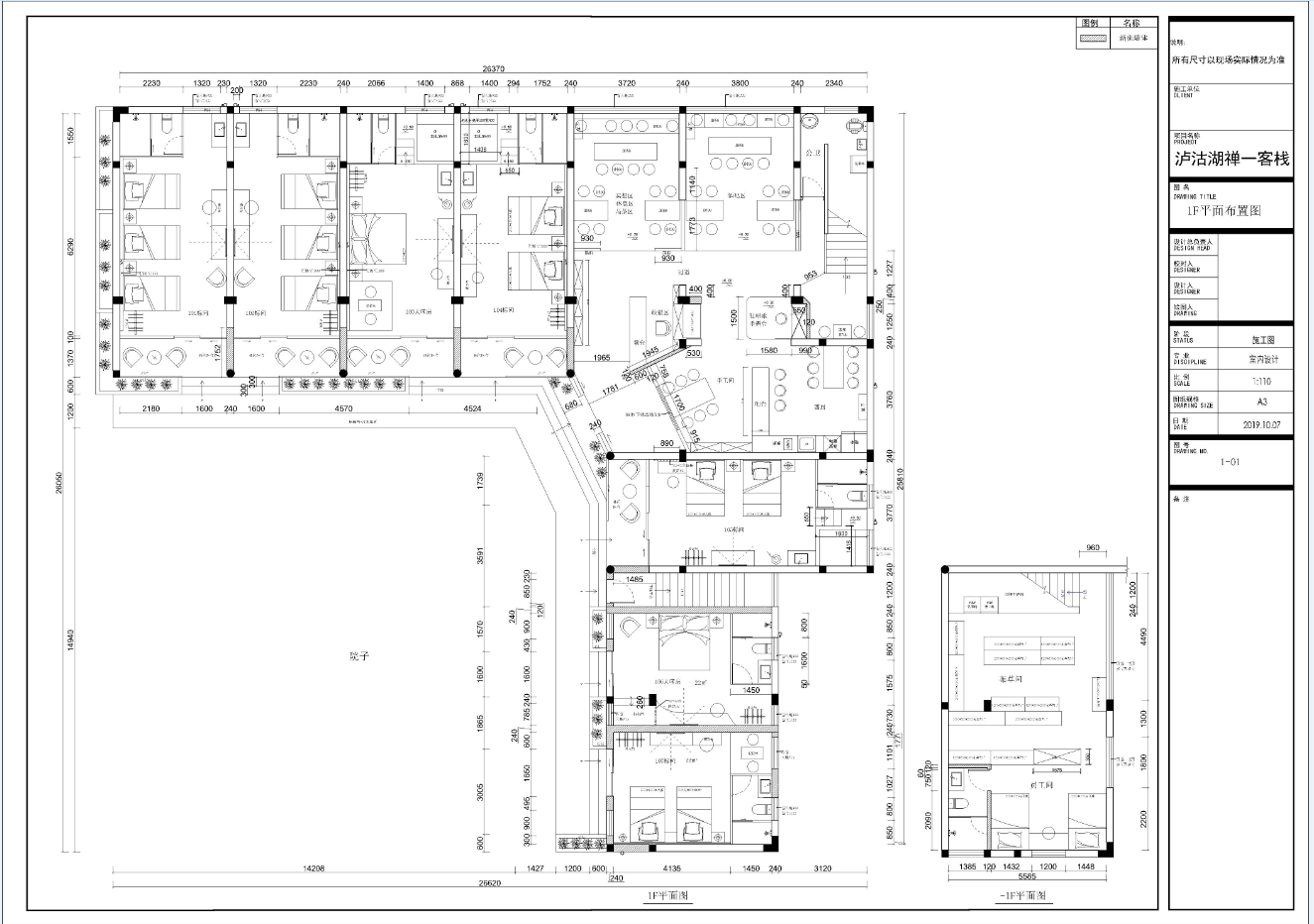
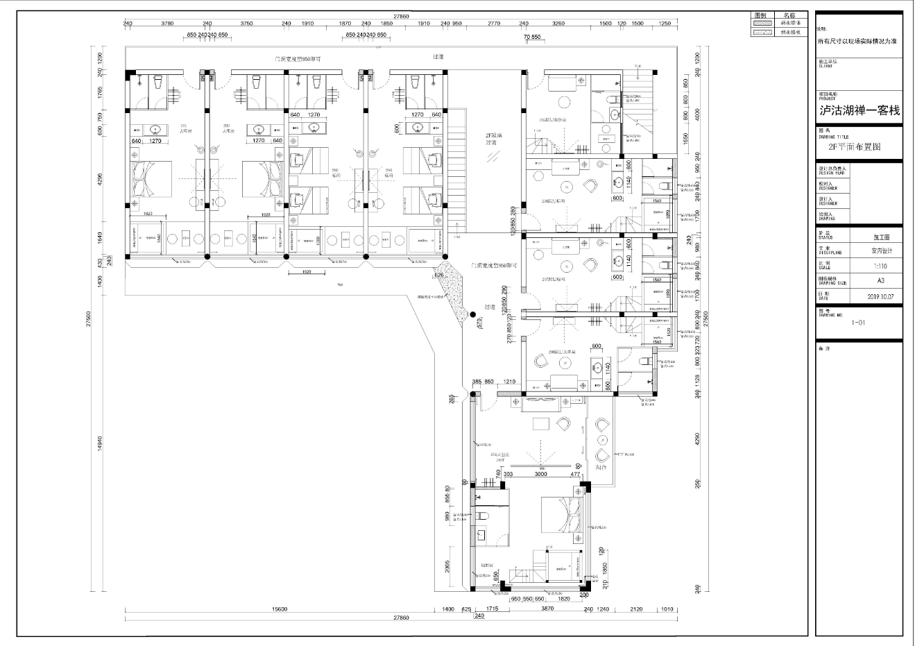
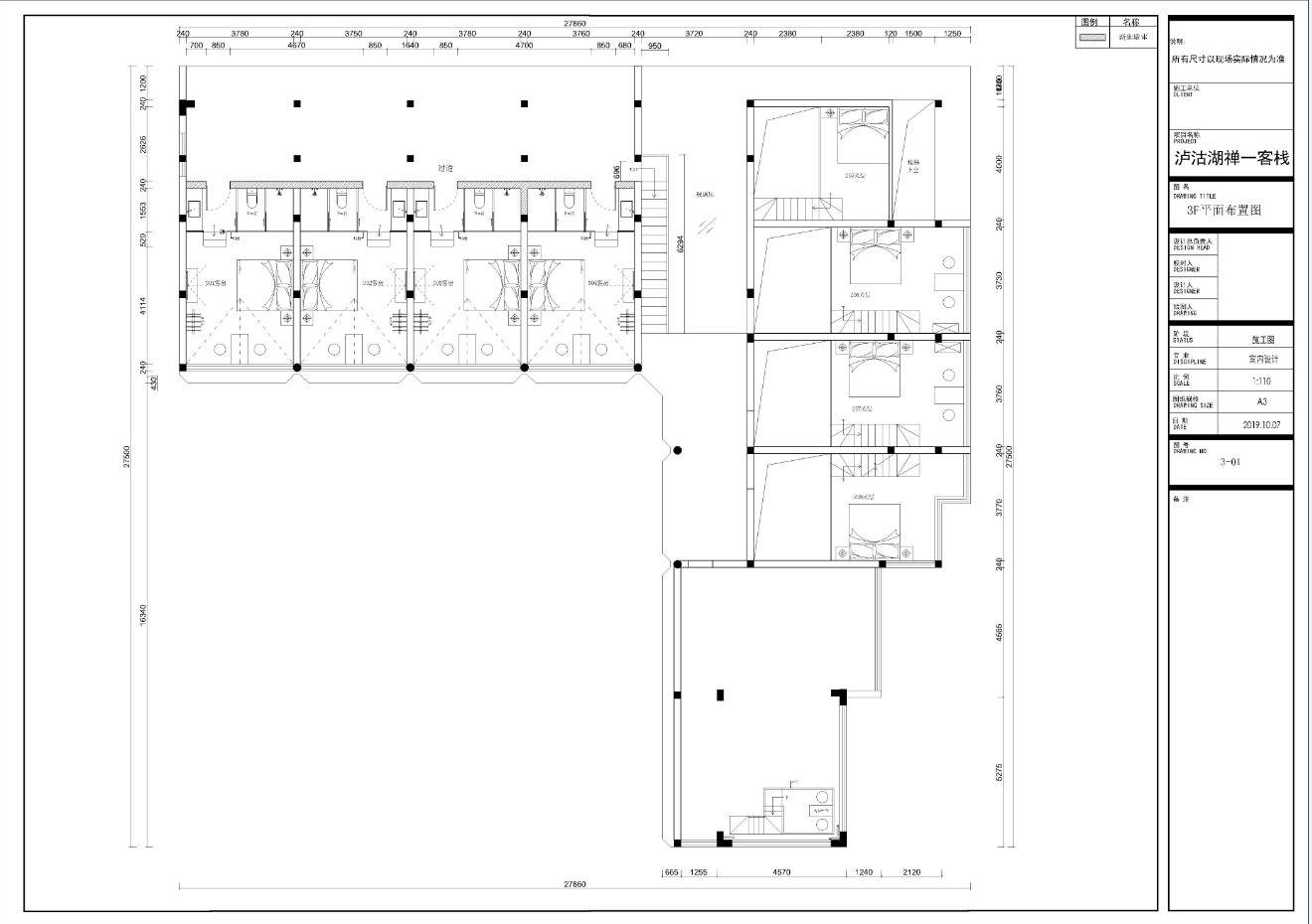
该方案为丽江泸沽湖景区的一个民宿酒店空间,酒店一共三层,方案设计总面积在1360平米左右,一楼设有前台、休闲禅吧、餐吧、展示舞台,二层、三层主要以客房为主;将原有的民居建筑结构的保留,在原有的空间关系上进行局部改造,风格上以现代日式风格展开,在色彩上以原木色为主,在软装上结合日本图案及榻榻米的文化元素,因地制宜将室内空间和室外自然景观融为一体,天人合一。

酒店一层平面布局图

酒店一层入口全景

酒店一层前台区域全景

酒店一层休息吧区域全景

一层103标间

一层104标间

一层107标间

酒店二层平面布局图

二层201-202大床房

二层206-207跃层房

二层209大套房01角度

二层209大套房02角度

酒店三层平面布局图

三层大套房01角度

三层大套房02角度
↑ 上一篇:建筑室内设计—《新中式风格居住空间设计》
↓ 下一篇:建筑室内设计——《“毛公窑”陶艺馆》



版权所有 © 云南经济管理学院-艺术与传媒学院 滇ICP备05007082号
Copyright 云南经济管理学院-艺术与传媒学院